Active MLS# 25025030

16906 Bottlebrush Court, Chesterfield, MO 63005

Subdivision: Arbors At Kehrs Mill - 2

List Price: $1,350,000

5

Bedrooms

6

Baths

2,850

Area (sq.ft)

$474

Cost/sq.ft

1 Story

Type

235

Days on Market
Call Agent

Description

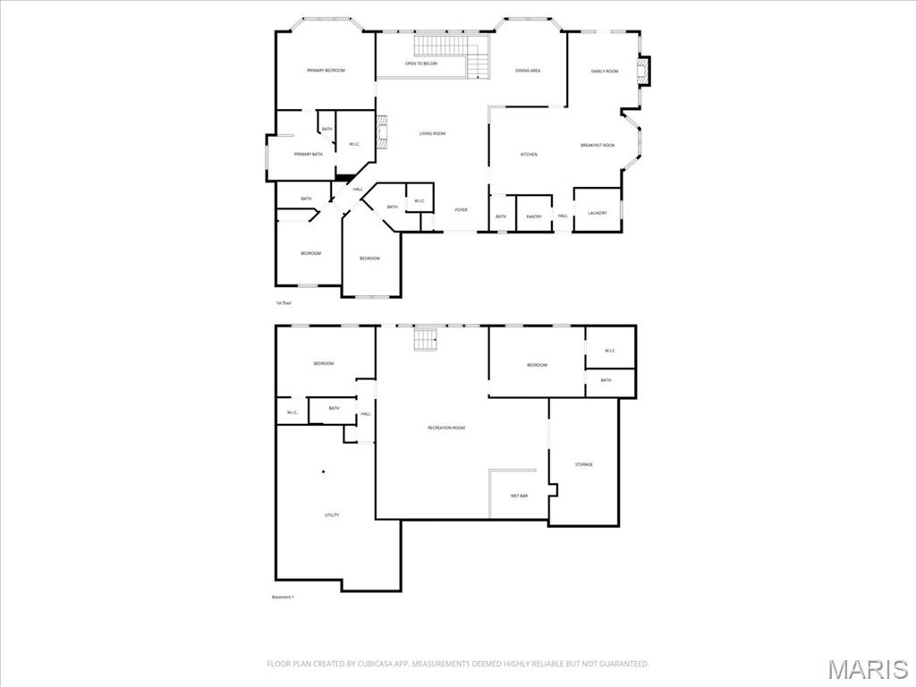
Stunning Atrium Ranch located in The Arbors at Kehrs Mill, showcasing thoughtful details and custom touches throughout! Set on a spacious ½-acre fenced lot, perfect for a future pool, this 5-bedroom, 5.5-bath home offers over 4,700 sq. ft. of finished living space. The exterior features an inviting blend of brick and stone. Inside, gleaming wood floors flow through the main living areas, leading to a light-filled great room with soaring windows, gas fireplace, built-ins, and an elegant iron-spindle staircase. A formal dining room with bay window adds timeless charm. The gourmet kitchen boasts custom cabinetry, stainless steel appliances, granite counters, a breakfast bar, and an adjoining breakfast room with bay window. A cozy hearth room with gas fireplace and triple French doors opens to a screened-in porch and deck, perfect for entertaining or unwinding. The primary suite offers a coffered ceiling with crown molding, a spa-inspired bath with dual vanities, jetted tub, a separate walk-in shower, and generous walk-in closets. Two additional bedrooms, 2.5 baths, and a laundry room complete the main level. The finished walkout lower level includes a spacious rec room, a custom walk-behind wet bar, two more bedrooms, and two full baths. Extras include a central vacuum system, 3-car side-entry garage, covered patio, irrigation system, and more!

Property Information

List Price $ 1,350,000
Original Price $ 1,350,000
Status Active
MLS# 25025030
Bedrooms 5
Full baths 5
Half baths 1
Main Floor Full Baths 5
Sq. Ft. Above 2,850
Lot Size 1
Acres 1
Subdivision Arbors At Kehrs Mill - 2
Municipality Chesterfield
School District Rockwood R-VI
County St Louis
Property Type Residential
Style 1 Story
Style Description
Transaction Type Sale
Special Conditions
Type
Building Exterior Amenities
Building Style Traditional,Ranch
Ownership Private
Special Description
Appliances Some Dishwasher,Disposal,Microwave,Range Hood,Gas Water Heater

Additional Information

Elementary School Chesterfield Elem.
Jr. High School Rockwood Valley Middle
Sr. High School Lafayette Sr. High
Association Fee None
Architecture Traditional,Ranch
Construction Brick,Other,Vinyl Siding
Garage Spaces 3
Carport Spaces 0
Basement Description Bathroom,Full,Partially Finished,Concrete,Sleeping Area,Walk-Out Access
Fireplace Type Gas,Great Room,Kitchen,Recreation Room
Fireplace Location
Lot Dimensions IRRxIRR
Special Areas
Cooling Ceiling Fan(s),Central Air,Electric,Zoned
Sewer Public Sewer Sewer
Heating Forced Air,Zoned,Natural Gas
Water Public
Heat Source
Kitchen
Appliances Dishwasher,Disposal,Microwave,Range Hood,Gas Water Heater
Dining
Interior Decor Central Vacuum,Separate Dining,Bookcases,Open Floorplan,Special Millwork,Walk-In Closet(s),Breakfast Bar,Breakfast Room,Kitchen Island,Custom Cabinetry,Granite Counters,Walk-In Pantry,Double Vanity,Separate Shower,Two Story Entrance Foyer
Property Tax $12,697

Map Location

Rooms Dimensions

Room Dimensions (sq.rt)
Great Room (Level-Main) 21 x 20
Dining Room (Level-Main) 15 x 14
Kitchen (Level-Main) 17 x 13
Breakfast Room (Level-Main) 14 x 13
Hearth Room (Level-Main) 14 x 14
Primary Bedroom (Level-Main) 19 x 16
Bedroom 2 (Level-Main) 15 x 10
Bedroom 3 (Level-Main) 12 x 11
Recreation Room (Level-Lower) 34 x 31
Bedroom 4 (Level-Lower) 18 x 13
Bedroom 5 (Level-Lower) 18 x 13
Laundry (Level-Main) 8 x 6

Listing Courtesy of Compass Realty Group - [email protected]