Active MLS# 25066470

216 San Angelo Drive, Chesterfield, MO 63017

Subdivision: Monterra 1

List Price: $470,000

3

Bedrooms

3

Baths

1,858

Area (sq.ft)

$253

Cost/sq.ft

1 Story

Type

5

Days on Market
Call Agent

Description

Nestled in a quiet and charming neighborhood in Chesterfield, this three bedroom ranch home presents an exciting opportunity. From the charming curb appeal to the gracious space inside, this home is looking for its next owner. Step inside the foyer with the dining room and living room on either side, enter into the large family room with fireplace and built in shelving. Family room opens to the nice sized kitchen and to the three season room overlooking the shaded backyard. Three bedrooms and two bathrooms on the main floor. The Primary has an ensuite bath with a walk-in shower. Downstairs is a large recreaction room with a bar for entertaining. There is a sleeping area, a workshop, a full bath and tons of storage. This home was freshly painted for you to complete your own canvas! Centrally located to schools, shopping, restaurants and access to all things St. Louis. Check it out today!

Property Information

List Price $ 470,000
Original Price $ 470,000
Status Active
MLS# 25066470
Bedrooms 3
Full baths 3
Half baths 0
Main Floor Full Baths 3
Sq. Ft. Above 1,858
Lot Size
Acres 0
Subdivision Monterra 1
Municipality Chesterfield
School District Parkway C-2
County St Louis
Property Type Residential
Style 1 Story
Style Description
Transaction Type
Special Conditions Standard
Type
Building Exterior Amenities None
Building Style Ranch
Ownership
Special Description Standard
Appliances Some Electric Cooktop,Dishwasher,Disposal,Microwave,Electric Oven,Refrigerator,Washer/Dryer

Additional Information

Elementary School Green Trails Elem.
Jr. High School Central Middle
Sr. High School Parkway Central High
Association Fee $55/Annually
Architecture Ranch
Construction Brick
Garage Spaces 2
Carport Spaces 0
Basement Description Bathroom,Partially Finished,Sleeping Area
Fireplace Type Family Room
Fireplace Location
Lot Dimensions 150x90
Special Areas
Cooling Ceiling Fan(s),Central Air
Sewer Public Sewer Sewer
Heating Forced Air,Natural Gas
Water Public
Heat Source
Kitchen
Appliances Electric Cooktop,Dishwasher,Disposal,Microwave,Electric Oven,Refrigerator,Washer/Dryer
Dining
Interior Decor Bar,Bookcases,Breakfast Bar,Eat-in Kitchen,Entrance Foyer,Separate Dining,Shower,Track Lighting,Workshop/Hobby Area
Property Tax $4,657

Map Location

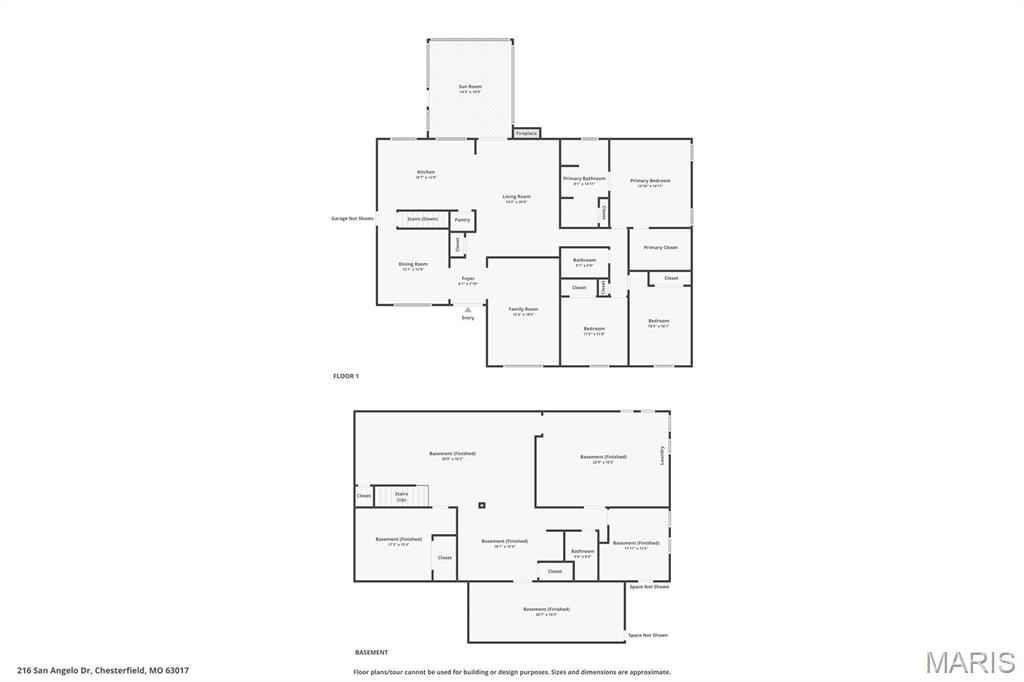
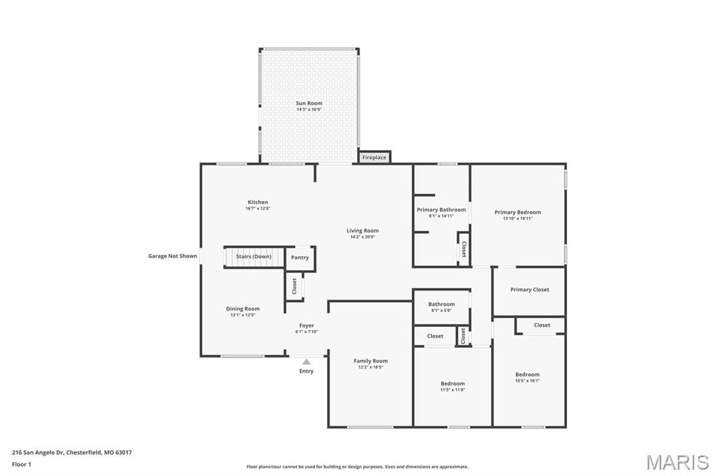
Rooms Dimensions

Room Dimensions (sq.rt)
Bedroom (Level-Main) 14 x 13
Bedroom 2 (Level-Main) 11 x 10
Bedroom 3 (Level-Main) 12 x 9
Dining Room (Level-Main) 11 x 9
Family Room (Level-Main) 19 x 14
Kitchen (Level-Main) N/A
Living Room (Level-Main) 17 x 12
Recreation Room (Level-Basement) 28 x 14

Listing Courtesy of Keller Williams Realty St. Louis - [email protected]