Withdrawn MLS# 26005241

1287 Still House Creek Road, Chesterfield, MO 63017

Subdivision: Shenandoah 1

List Price: $424,900

4

Bedrooms

3

Baths

2,056

Area (sq.ft)

$207

Cost/sq.ft

2 Story

Type

75

Days on Market
Call Agent

Description

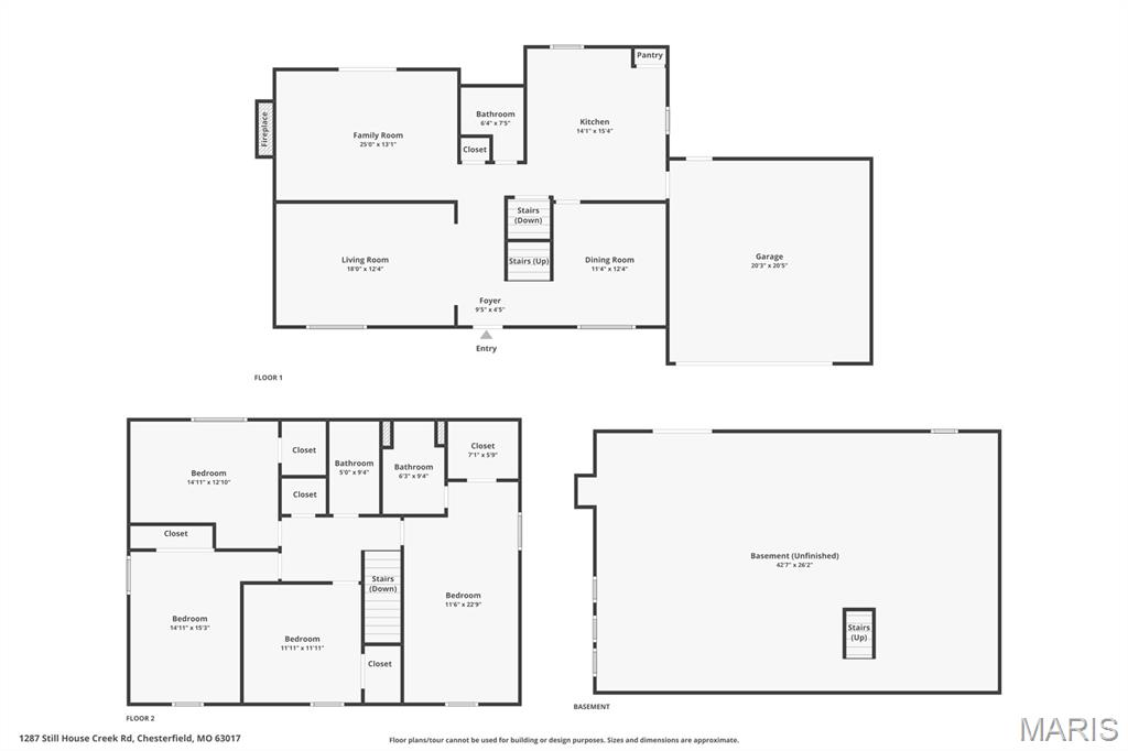
Move-in ready Chesterfield 2-story home located in the popular Parkway School District. This 4 bedroom, 2.5 bathroom home offers a large level lot with lots of grass space. The main floor features a formal living room, a family room with fireplace, a spacious eat-in kitchen, and separate dining room. The upper level has the master suite with full bath, and 4 bedrooms with a full hall bath. One bedroom features built-in bookcases that would make a great home office. The walk-out basement offers ample storage with laundry area. Composite deck overlooks the landscaped yard backing to a wooded common area. Other amenities include an attached 2 car garage, fresh paint throughout and newer luxury vinyl floors in the kitchen and hall. All appliances including refrigerator, washer & dryer! Welcome Home!

Property Information

List Price $ 424,900
Original Price $ 424,900
Status Withdrawn
MLS# 26005241
Bedrooms 4
Full baths 2
Half baths 1
Main Floor Full Baths 2
Sq. Ft. Above 2,056
Lot Size
Acres 0
Subdivision Shenandoah 1
Municipality Chesterfield
School District Parkway C-2
County St Louis
Property Type Residential
Style 2 Story
Style Description
Transaction Type
Special Conditions Standard
Type
Building Exterior Amenities
Building Style Traditional
Ownership
Special Description Standard
Appliances Some Dishwasher,Dryer,Microwave,Electric Range,Refrigerator,Washer

Additional Information

Elementary School Shenandoah Valley Elem.
Jr. High School Central Middle
Sr. High School Parkway Central High
Association Fee None
Architecture Traditional
Construction Brick,Vinyl Siding
Garage Spaces 2
Carport Spaces 0
Basement Description Full,Walk-Out Access
Fireplace Type
Fireplace Location
Lot Dimensions 84X130
Special Areas
Cooling Central Air
Sewer Public Sewer Sewer
Heating Forced Air
Water Public
Heat Source
Kitchen
Appliances Dishwasher,Dryer,Microwave,Electric Range,Refrigerator,Washer
Dining
Interior Decor Bookcases,Eat-in Kitchen,Pantry,Separate Dining,Walk-In Closet(s)
Property Tax $4,384

Map Location

Rooms Dimensions

Room Dimensions (sq.rt)
Living Room (Level-Main) 18 x 12
Family Room (Level-Main) 25 x 13
Kitchen (Level-Main) 14 x 15
Dining Room (Level-Main) 11 x 12
Bathroom (Level-Second) 15 x 11
Bedroom (Level-Second) 15 x 15
Primary Bedroom (Level-Second) 12 x 23
Bedroom (Level-Second) 12 x 12
Primary Bathroom (Level-Second) 6 x 9

Change History

Listing Courtesy of Allen Brake Real Estate - [email protected]